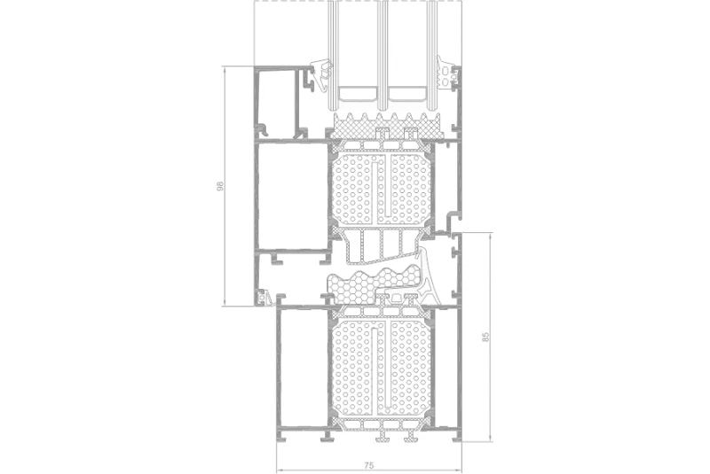
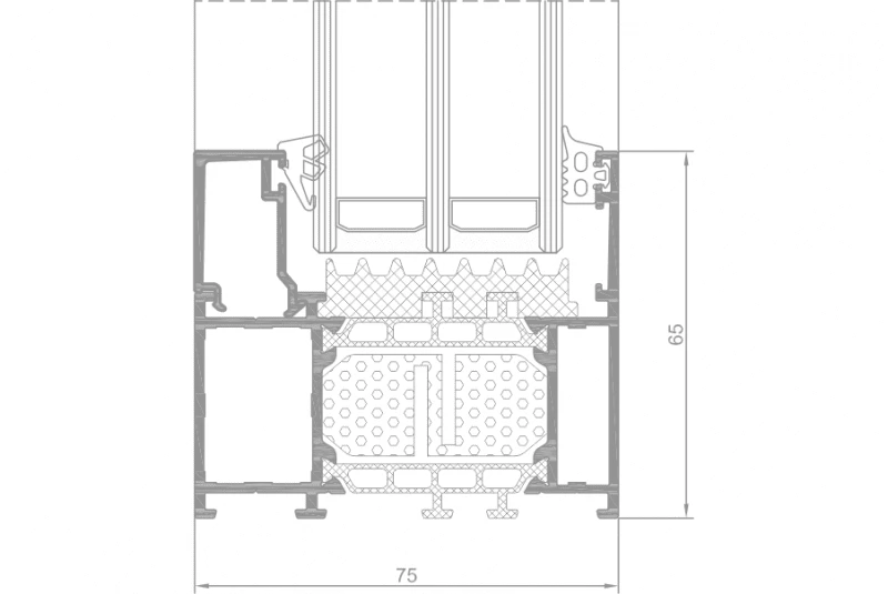
Aliplast Genesis 75
Aluminium
Système de fenêtres à trois chambres conçu pour le montage de fenêtres à l’isolation thermique accrue. Les paramètres thermiques de Genesis 75 répondent aux exigences en vigueur depuis 2021 (Uw jusqu’à 0,90). C’est un système moderne de portes et fenêtres à trois chambres, aux paramètres d’isolation thermique supérieurs.
Titre ici !
La base du système Genesis 75 est constituée de profilés d’une profondeur de 75 mm. Genesis 75 est un système destiné à la conception de fenêtres dans les bâtiments d’utilité publique et les maisons individuelles ou les immeubles résidentiels. Le système Genesis 75 est construit à partir d’une nouveauté sur le marché - de matériaux d’isolation modernes. Outre le joint central, un joint thermique supplémentaire a été conçu pour la fenêtre. Grâce à cette solution, l’étanchéité de la fenêtre est très élevée (infiltration d’air, imperméabilité). Produit moderne et esthétique. Le système de fenêtres Genesis 75 crée un nouveau standard d’isolation thermique tout en garantissant la plus haute ergonomie d’utilisation et la modernité du profilé. Large choix de couleurs – gamme RAL (Qualicoat 1518), couleurs structurelles, couleurs imitation bois Aliplast Wood Colour Effect (Qualideco PL-0001), anodisé, bicolore.
Coefficient thermique
0.76 W/(m²K)Étanchéité à l’eau
jusqu’à E1350ATypes de vitrages décoratifs - façades
antisol-bleu
antisol-brun
antisol-gris
antisol-vert
chinchilla
crepi
decormat
delta-inco
delta-mat
flute
kathedral
kura
